Hostavice
| Kategorie: | Urbanismus |
| Název: | Hostavice - lokalita rodinný domů |
| Lokace: | Hostavice, Praha 14 |
| Fáze: | Studie |
| Autoři: | Ing. arch. Jiří Písek, Ing. arch. Jan Seyček, Ing. arch. Martin Prokeš |
| Datum: | 2009 |
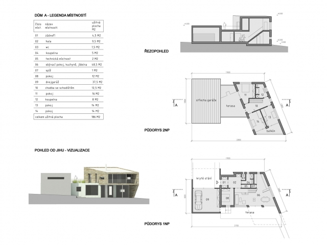
Charakteristika
Návrh se zabývá možným využitím pozemků v Praze - Hostavicích, určené k výstavbě rodinných domů. Řešení rozděluje zájmové území na tři pozemky pro 3 rodinné domy. Navržená obslužná komunikace ze západu je společná pro všechny tři pozemky. Objekty na sousedních pozemcích nás vedli k rozhodnutí seskupit všechny tři rodinné domy k centru celého území a k navržené komunikaci. Rozmístěním vjezdů vůči navržené komunikaci, jakož i odstavných ploch na pozemcích, jsme se snažili v nejvyšší míře vyhnout nadměrné velikosti těchto ploch. Pouze u jednoho domu bylo nutné vytvořit prostor pro otáčení vozidla přímo na pozemku. V ostatních dvou případech se vozidla otáčejí s využitím obslužné komunikace.
Půdorysy objektů vznikaly ve vztahu na linie hranic jednotlivých pozemků a ochranných pásem. Stejně tak je i vytvarovaly vzájemné zvolené odstupy mezi objekty. Dalším formujícím prvkem byla volná zeleň rozkládající se severně od řešeného pozemku, jenž vybízela vytvořit, jakožto vhodný objekt pozorování, dostatečný výhled každému z navržených domů. Objekty byly tedy řešeny i s ohledem na to, aby si vzájemně v tomto ohledu nepřekážely. Objekty hmotově odpovídají okolní spíše drobnější byť husté zástavbě. Každý z domů je proto tvořen kompaktním prolnutím tří různě tvarovaných hlavních hmot, čímž, při zajištění dostatečného obytného prostoru, vznikly objekty s dobrým měřítkem. S jednotlivými hmotami jsou částečně i děleny funkce soustředěné v rodinném domě. Jádro domu s hlavními obytnými prostory je pak u každého domu vždy dynamickým dominantním prvkem. Každý z domů je unikát, kterému nejsou nijak na škodu společné sjednocující principy.
Centralizací zástavby byla zajištěna volnost prostoru zahrad. Objekty jsou pojaty v přímé návaznosti obytných prostor na tyto venkovní prostory a to jak vizuální tak komunikační a funkční. Celkovému spojení s venkovním prostorem odpovídá u každého domu i hra s několika výškovými úrovněmi definovanými přirozeným tvarováním původního pozemku. Čímž je podpořen důraz na zajištění dostatečného soukromí pro život v domě i na zahradě.
Prohlédnout galerii










Urbanismus