Čeperka
| Kategorie: | Urbanismus |
| Název: | Rodinné domy - Čeperka |
| Lokace: | Čeperka, okres Kladno |
| Fáze: | Realizace |
| Autoři: | Ing. arch. Jiří Písek, Ing. arch. Jan Seyček, Ing. Jan Krauz |
| Datum: | 2015- |
Charakteristika
Projekt klidné čtvrti nových rodinných domů je situován v oblasti Čeperka na okraji obce Nouzov, která spadá pod správu obce Unhošť.
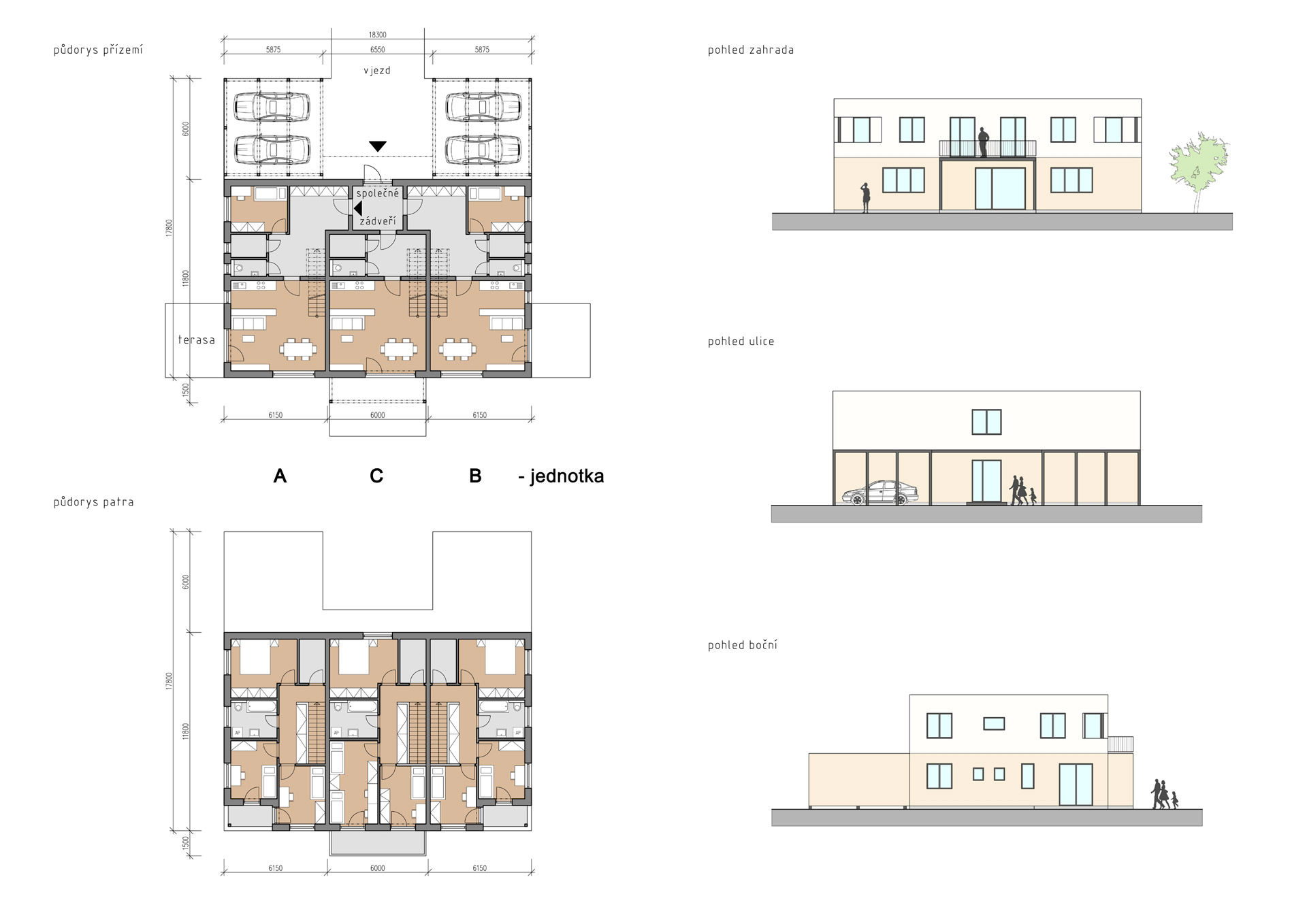
Lokalita je rozdělena na pozemky o výměře cca 2000 m2, na kterých jsou navrženy rodinné domy o třech samostatných dvoupodlažních bytových jednotkách. Každá z jednotek funguje nezávisle na ostatních, s přímým přístupem na vymezenou část zahrady, s vlastním parkovacím stáním.
Navržený dům obdélníkového půdorysu má dvě nadzemní podlaží a je rozdělen na tři samostatné bytové jednotky, každá bytová jednotka je rovněž dvoupodlažní. Vstup do jednotek je řešen ze společného zádveří. Krajní jednotky jsou osově symetrické, proti střední jednotce o jeden pokoj v přízemí větší. V přízemí jednotek jsou situované společné obytné prostory, jako je obývací pokoj s kuchyňským koutem, dále technické zázemí a úložné prostory. V horním podlaží jsou situované ložnice a pokoje a další úložné prostory.
Prohlédnout galerii









Urbanismus