Skybox - O2 arena
| Kategorie: | Komerční interiéry |
| Název: | Skybox - O2 arena |
| Lokace: | ul. Českomoravská, Praha 9 |
| Fáze: | Studie |
| Autoři: | Ing. arch. Jiří Písek, Ing. arch. Jan Seyček |
| Datum: | 2015 |
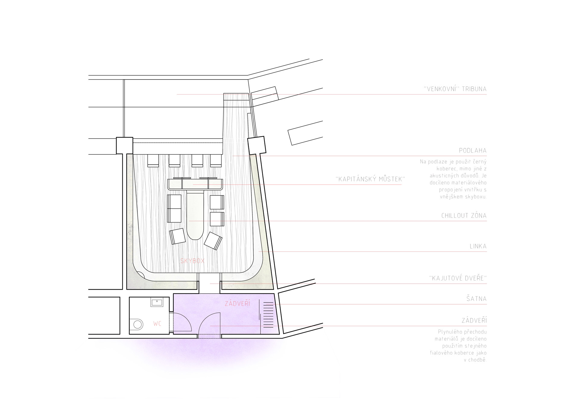
Charakteristika
Vytvořit VIP skybox, který tu ještě nebyl a zároveň měl srovnání se světovými počiny této kategorie. Zařadit tak O2 arénu a její VIP zónu do nejvyšší světové třídy. S tímto cílem jsme se pustili do uvažování nad samotným konceptem, který měl být zastřešujícím a vodícím prvkem celého návrhu.
Naší volbou se jednoznačně stal koncept, který pojednává skybox jako novou kajutu v obří zaoceánské lodi, plující na vlně úžasných sportovních či uměleckých zážitků. Jako inspirace při návrhu designu a materiálů nám posloužil interiér luxusních jachet. Jakmile koncept schválil také klient, nebyla již jiná volba a směr jízdy byl započat.
Prohlédnout galerii





Komerční interiéry