Interiér kanceláří UniCredit
| Kategorie: | Komerční interiéry |
| Název: | Interiér kanceláří UniCredit |
| Lokace: | Budova Filadelfie - BB Centrum, Praha 4 |
| Fáze: | Realizace |
| Autoři: | Ing. arch. Jiří Písek, Ing. arch. Jan Seyček, Ing. Jan Krauz |
| Fotografie: | Viktor Jelínek |
| Datum: | 2011 |
Charakteristika
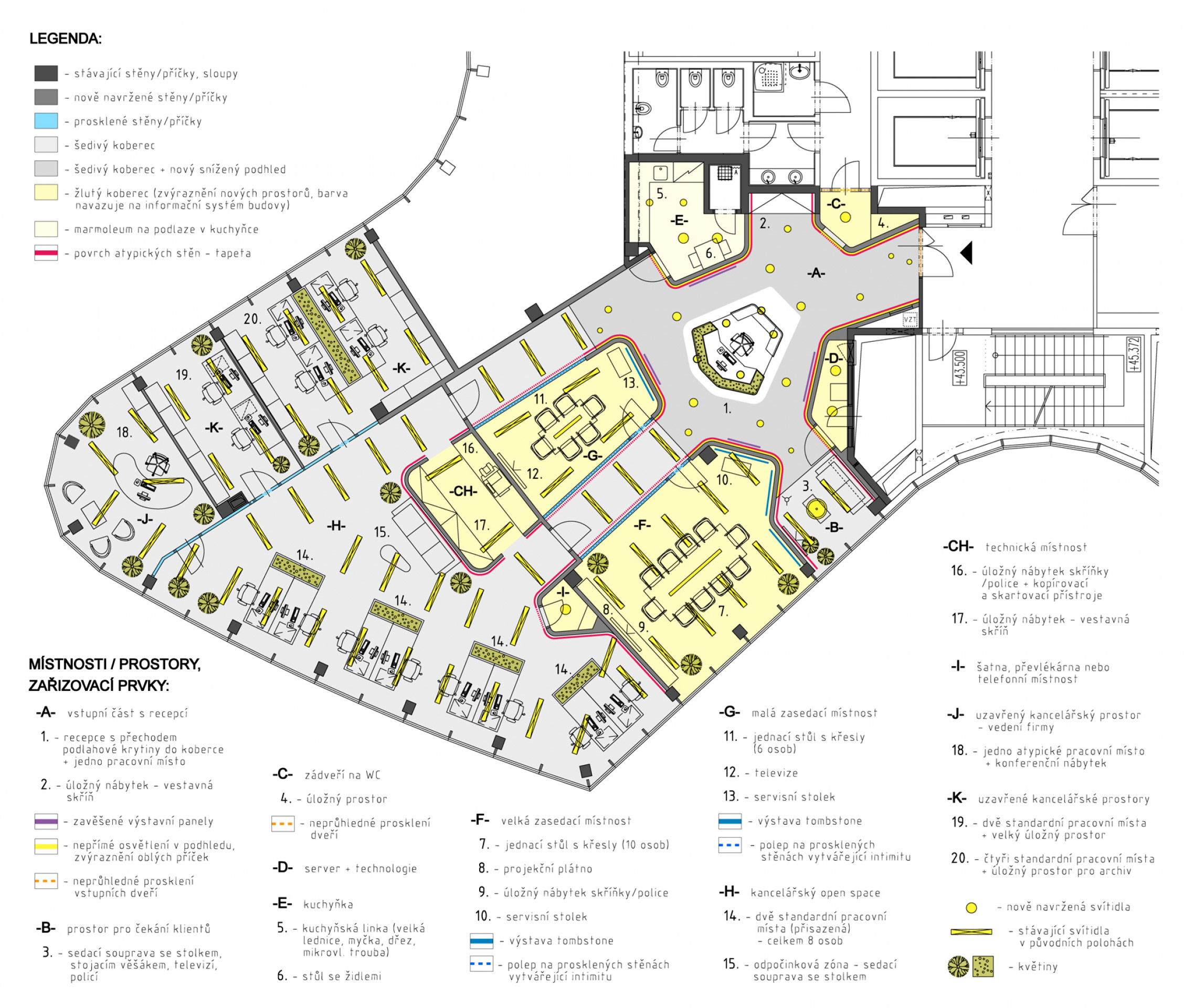
Kanceláře UniCredit se nacházejí ve dvanáctém z celkem sedmnácti podlaží administrativní budovy FILADELFIE. Budova má nepravidelný půdorys ve tvaru jakéhosi deformovaného organického kříže, kterým je rozčleněna do čtyř oddělených křídel. Navrhované dispoziční řešení a tvarosloví interiéru navazuje na koncepci budovy a to organickým tvarováním prostorů, nepravoúhlým uspořádáním, zaoblením rohů stěn a detailů nábytku.
Na dispozici společných komunikačních prostorů (chodba s výtahy a schodišti) navazuje v námi řešeném, jihozápadním, křídle vstupní prostor. Jedná se o halu se solitérně pojatou, skleněným obalem obepnutou, recepcí uprostřed a zálivem se sezením pro návštěvy. Odtud lze pokračovat do prostoru s toaletami, místnosti s kuchyňkou nebo komory se serverem. Dvě komunikace vedoucí z haly hlouběji do křídla objektu řeší rozdělení podlaží na část se zasedacími místnostmi a kancelářskou zónu, přičemž dvě zasedací místnosti jsou situované v těsné blízkosti vstupní haly. Obě komunikace ústí do velkoprostorové kanceláře, kde jsme navrhli přístup do dalších tří menších, oddělených kanceláří.
Prohlédnout galerii























Komerční interiéry