Interiér kanceláří Addict
| Kategorie: | Komerční interiéry |
| Název: | Interiér kanceláří reklamní agentury Addict |
| Lokace: | ul. Korunní, Praha 10 |
| Fáze: | Realizace |
| Autoři: | Ing. arch. Jiří Písek, Ing. arch. Jan Seyček, Ing. Jan Krauz |
| Fotografie: | Viktor Jelínek |
| Datum: | 2016 |
Charakteristika
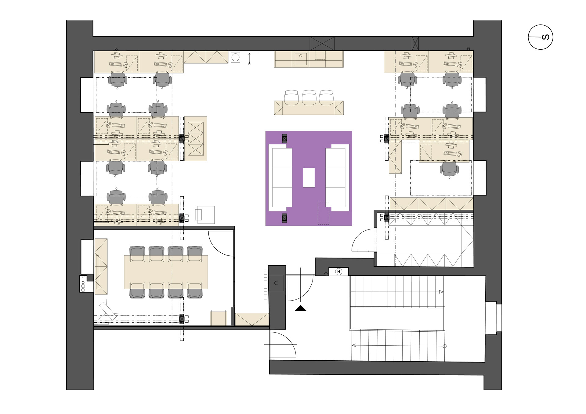
Přepracování půdního prostoru na svěží kancelářské místo plné pozitivní energie, motivující uživatele ke kreativní a individuální tvorbě - poznávacímu znaku zadávající reklamní agentury.
Záměrem návrhu bylo nechat vyniknout originalitu půdního prostoru a zakomponovat do něj všechny potřebné funkce a principy fungování v "open space". Výsledkem je jednoduché a přirozené prostředí. Barevnost interiéru a design jednotlivých prvků nevyčnívá nad samotným celkem, vyjma loga s jeho korporátní fialovou barvou a ukázkami reklamní tvorby, velkoplošně prezentovanými na stěnách. Zbylá část, kde v hlavní roli vystupuje všudypřítomná bílá barva se špetkou šedé a stříbrné, vytváří v interiéru požadovaný svěží pocit jak pro uživatele, tak pro návštěvníky.
Prohlédnout galerii






Komerční interiéry