Bytový dům Sokolovská
| Kategorie: | Bytové domy |
| Název: | Bytový dům Sokolovská |
| Lokace: | ul. Sokolovská, Praha 8 |
| Fáze: | Studie |
| Autoři: | Ing. arch. Jiří Písek, Ing. arch. Jan Seyček, Ing. Jan Krauz |
| Datum: | 2010 |
Charakteristika
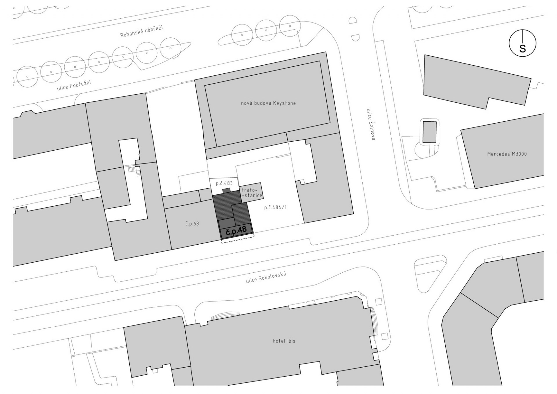
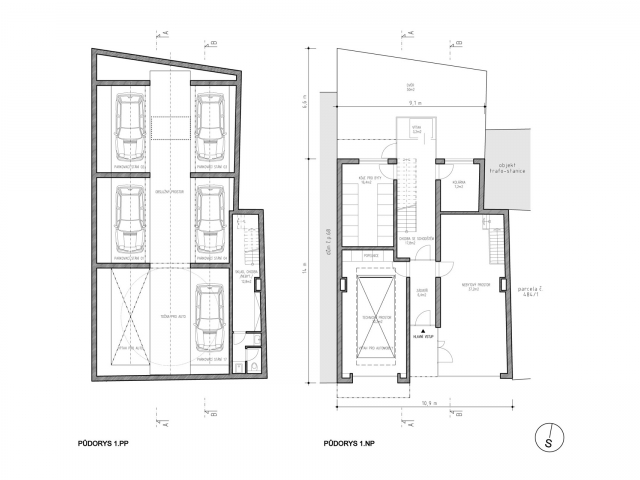
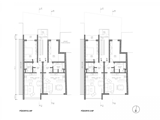
Na pozemku v Praze 8 - Karlíně je navržena budova bytového domu s 13 bytovými jednotkami o devíti nadzemních a třech podzemních podlažích sloužících jako podzemní garáže.
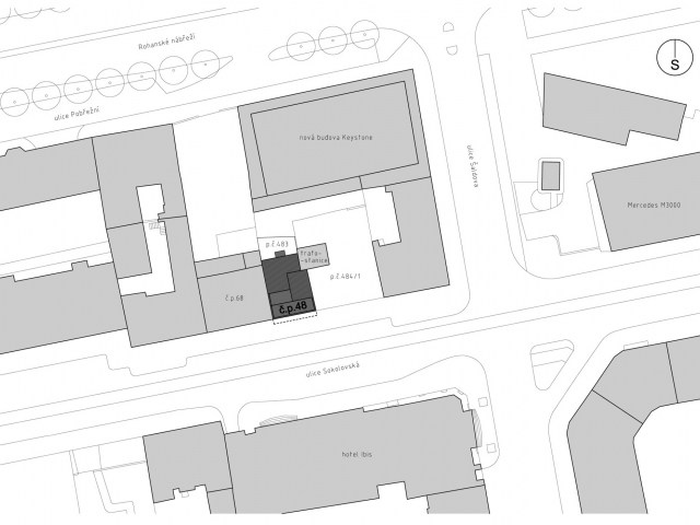
Návrh nahrazuje stávající, řadu let nevhodně udržovaný objekt z roku 1870 se dvěma nadzemními podlažími a podkrovím. Stávající objekt není chráněnou památkou. Rekonstrukce objektu není vzhledem k nutně vynaloženému úsilí adekvátně přínosná.
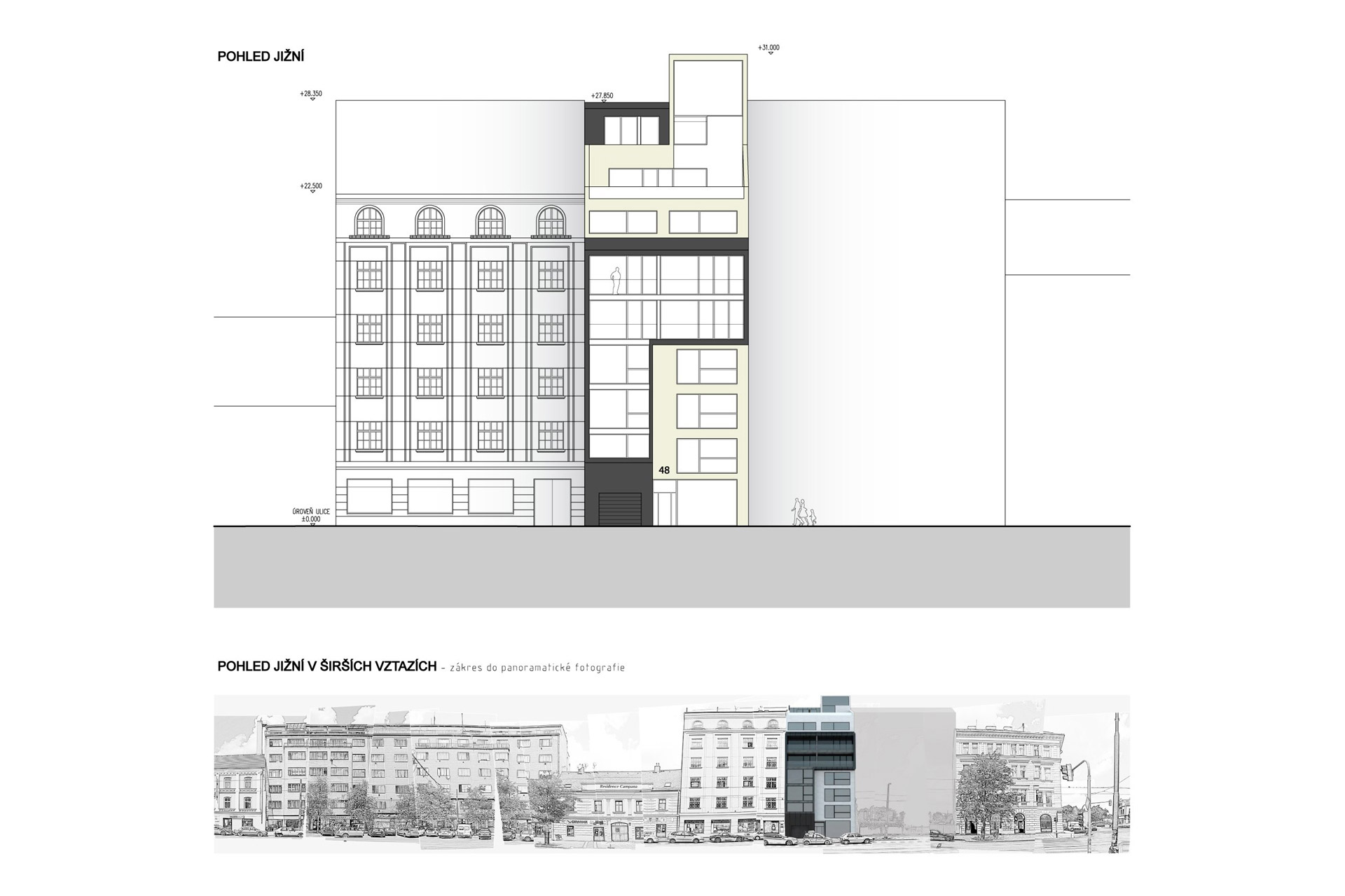
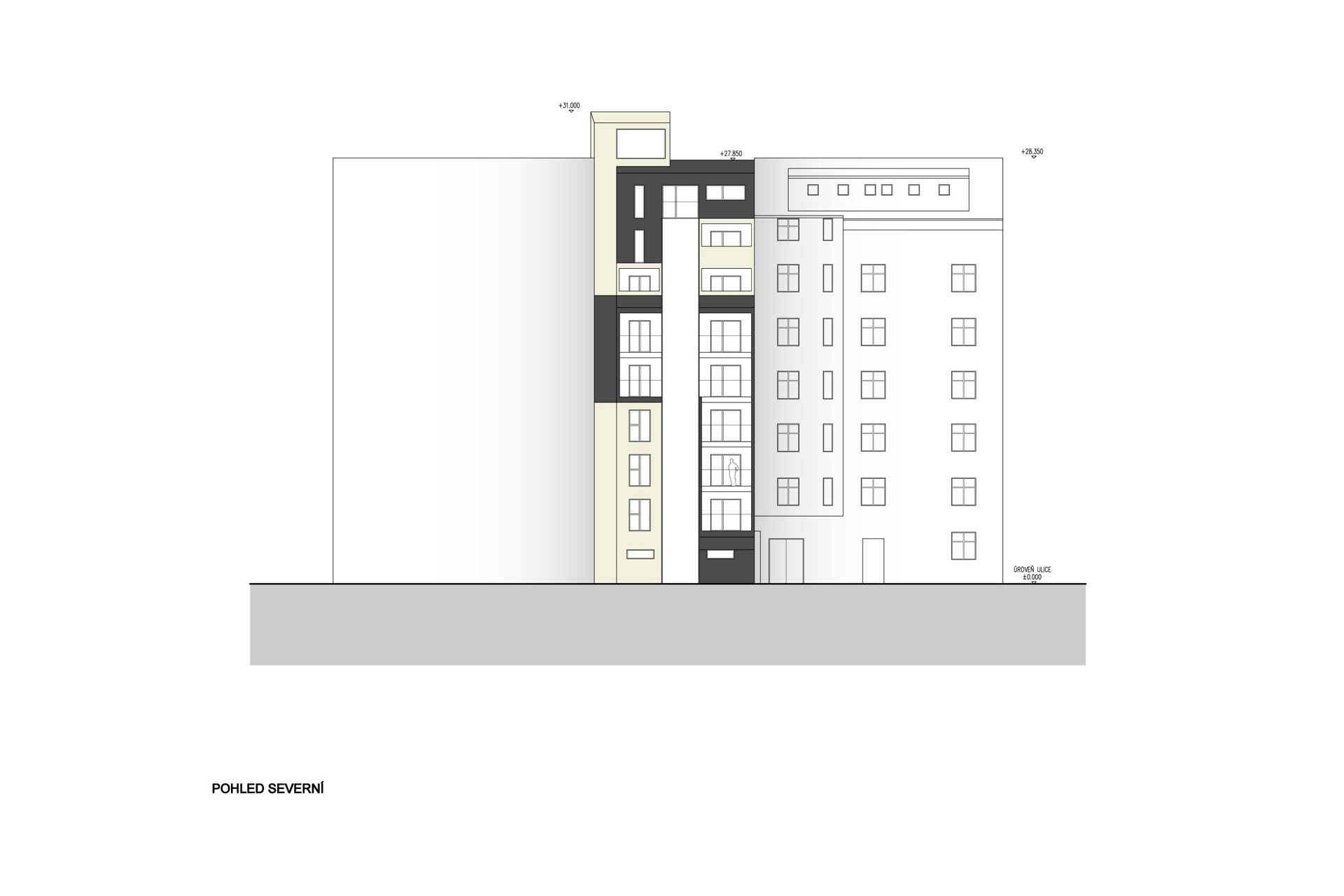
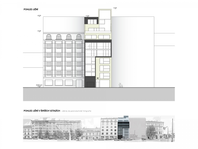
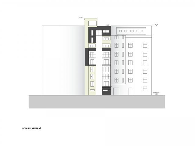
Navržená budova v podzemní části zabírá celou plochu pozemku. Je zde vytvořen prostor pro 17 vozidel. V nadzemní části se pak omezuje na hmotu menší, respektující rozměrově hloubku navazující blokové zástavby. Výškově koresponduje s vedlejším domem č.p.68 tak, že se především snaží navázat na hlavní římsu, poslední dvě podlaží pak uskakují podél štítu objektu č.p. 68, aby hlavní hmota navrženého objektu nepřesáhla sousední střechu ani její hřeben. S velkou pravděpodobností bude v budoucnu zastavěna i parcela číslo 484/1 (dnes proluka) a tím se kompletně uzavře uliční fronta viz. zákres do fotografie – architektonicko-stavební část.
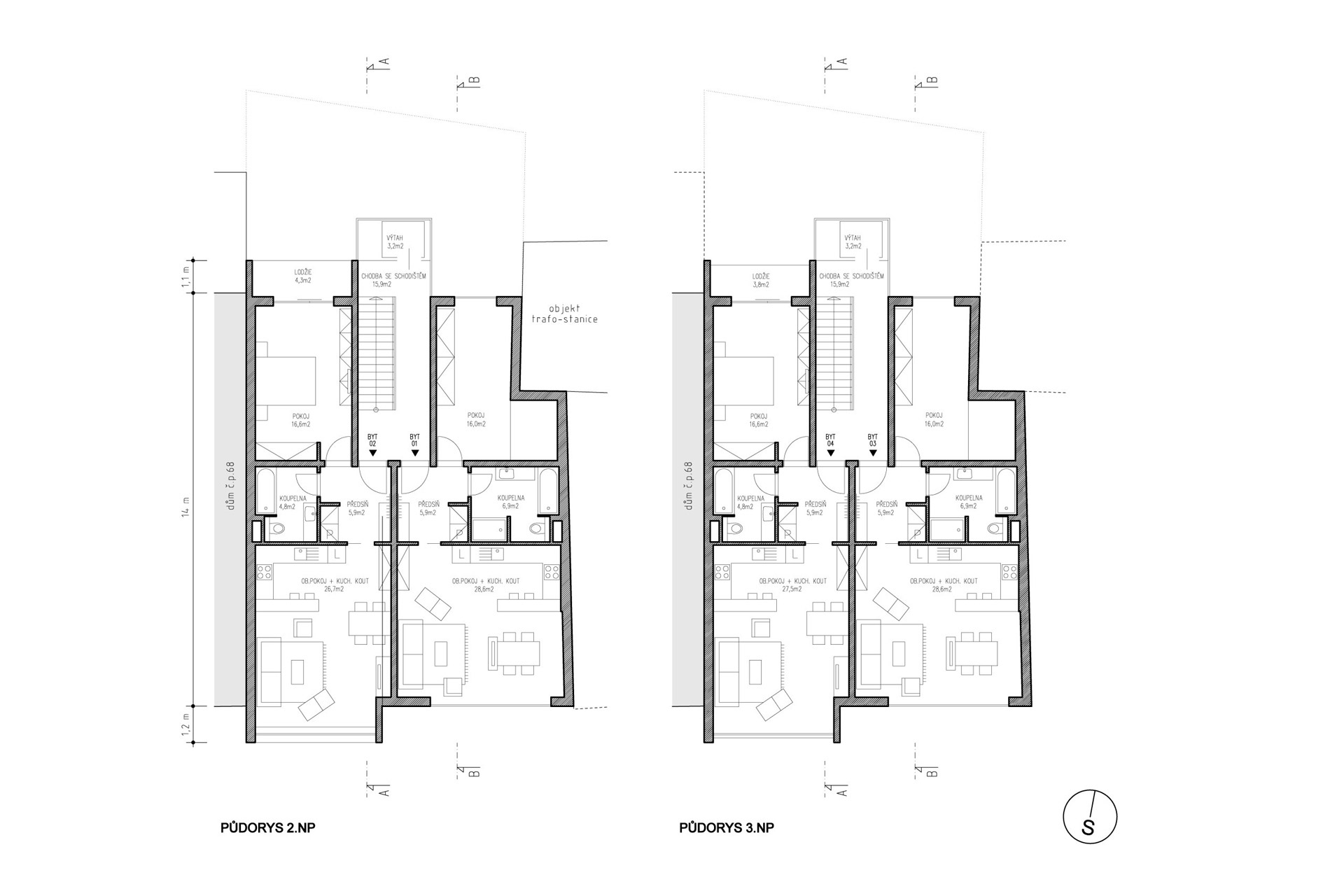
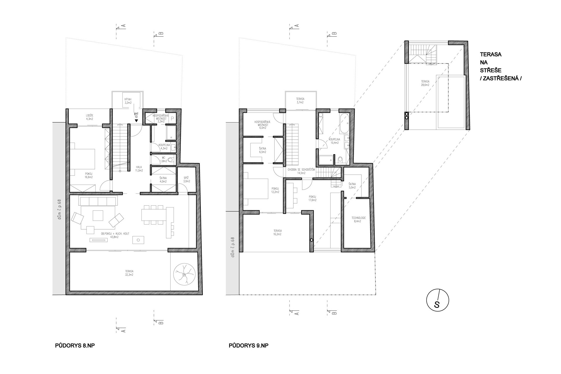
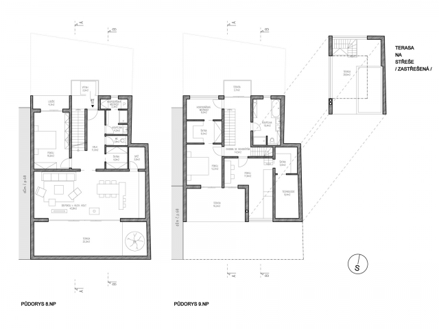
V prvním nadzemním podlaží obdélníkového půdorysu o hlavních rozměrech 10,9m x 13,95m je situován hlavní vstup do objektu, vjezd pro vozidla, nebytový prostor a část zázemí. Další nadzemní podlaží jsou čistě obytná. Každý byt je navržen tak, aby měl obytné místnosti orientované do uliční i klidné dvorní části.
Prohlédnout galerii












Bytové domy