Bytový dům Řipská
| Kategorie: | Bytové domy |
| Název: | Rekonstrukce bytového domu Řipská |
| Lokace: | ul. Řipská, Praha 10 |
| Fáze: | Studie |
| Autoři: | Ing. arch. Jiří Písek, Ing. arch. Jan Seyček, Ing. Jan Krauz |
| Spolupráce: | Bc. Veronika Kochaníková |
| Datum: | 2017 |
Charakteristika
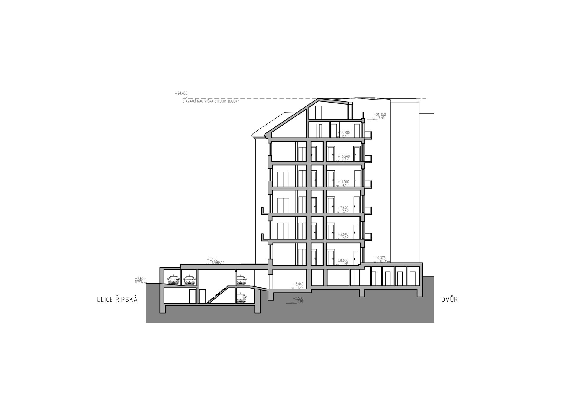
Návrh rekonstrukce řeší jak úpravy vnitřních dispozic, tak i otázku parkování a charakter využití podzemního podlaží a rovněž efektivní pojetí půdní vestavby a zbývajících prostor půdy.
Výrazným prvkem nově doplňujícím vzhled řešeného bytového domu je nové pojetí zahrady. V celé její ploše je totiž navržena dvoupodlažní garáž pro celkem 20 vozidel. Vjezd do garáže je navržen z ulice Dykova ve středu uliční hranice. Manipulace vozidel mezi podlažími je zajištěna výtahem. Garáž je výškově osazena tak, aby její střecha, která bude pojata jako intenzivně ozeleněná s umístěnou terasou, navazovala na první nadzemní podlaží. Tak bude zachována funkce zahrady s více funkčním spojením s provozem domu. Ve vztahu k ulici pak hmota garáže nepřevyšuje běžnou výšku oplocení u okolních staveb, čímž je podrženo místní měřítko.
První podzemní podlaží domu je z velké části nově využíváno jako nebytový prostor vhodný např. pro fitness nebo rehabilitační či relaxační provoz, při zahradní fasádě prosvětlen nově navrženými anglickými dvorky. K tomuto nebytovému prostoru je uvažována i část prvního zvýšeného nadzemního podlaží, která nabízí díky úrovni nad terénem příjemně prosvětlené prostory. Společně tak vzniká hodnotný prostor s širokými možnostmi využití s vlastním vstupem z ulice Řípská v rohu objektu. Zbylá část podzemního podlaží je navržena jako zázemí pro byty (sklepy apod.) a samozřejmě i pro provoz domu. Ve zbývající části prvního nadzemního podlaží jsou navrženy dva byty. Jako společná součást nebytového prostoru a domu je navržena recepce, která bude sloužit oběma provozům. Obdobně jako zahrada bude pojat nově dvorek, kde na stávající půdorysně vystupující části 1.pp bude navržena terasa, která bude sloužit v 1.np situovaným bytům.
Nadzemní podlaží 2 až 5 jsou řešeny s byty o dispozici 2+kk a 3+kk. Pro zlepšení jejich užitné hodnoty jsou pokoje směřující do dvorní části vybaveny nově navrženými balkony.
Pro zajištění maximálního využití půdního prostoru bez navýšení celkové výška stavby bude upravena pozice hřebene a návaznost uliční střechy se střešními rovinami ve dvorní části. Nově bude střecha uliční části s taškovou krytinou protažena až na výškovou úroveň hřebene dvorní vyvýšené pultové střechy. Dvorní část pak bude s plochou střechou řešena nově po celé délce hřebene, ale v menší šíři a to vzhledem směrem do dvora navrženým terasám, čímž bylo zároveň dosažena ustoupení dvorní hmoty a její estetičtější souhry s okolními střechami. Podkrovní byty budou nově řešeny jako mezonetové. V rozsahu střechy jsou navrženy dva byty, s obývacími pokoji v uličním traktu, s ložnicemi pak v dvorním a to převážně ve vyšším podlaží. S ohledem na vytvoření harmonického vzhledu uliční části střechy bude zjednodušeno tvarování vikýřů a rovněž budou stávající střešní okna nahrazena okny ateliérovými.
Fasáda bude nově opatřena béžovým monochormatickým zbarevením ve dvou tónech, kde v ploše bude použit světlejší tón, fasádotvorné prvky pak budou natřeny tmavším.
Prohlédnout galerii









Bytové domy