Bytový dům Přední Kopanina
| Kategorie: | Bytové domy |
| Název: | Bytový dům Přední Kopanina |
| Lokace: | Hokešovo náměstí 25, Přední Kopanina |
| Fáze: | Stavební povolení |
| Autoři: | Ing. arch. Jiří Písek, Ing. arch. Jan Seyček, Ing. Jan Krauz |
| Datum: | 2018- |
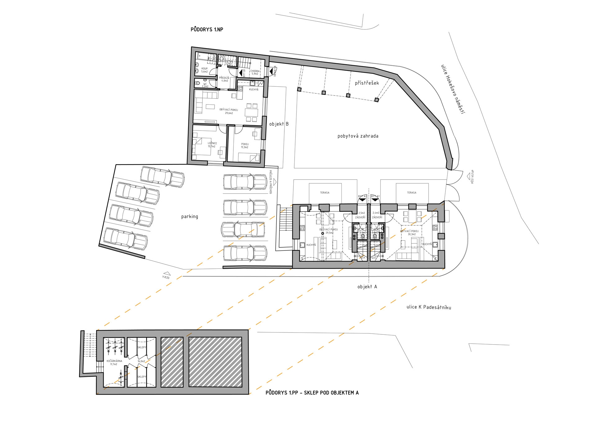
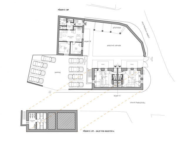
Charakteristika
Návrh řeší rekonstrukci bývalého statku v centru obce Přední Kopanina - Praha 6. V rámci jeho celkové rekonstrukce bude provedena transformace zemědělské usedlosti na obytný residenční soubor s pěti bytovými jednotkami.
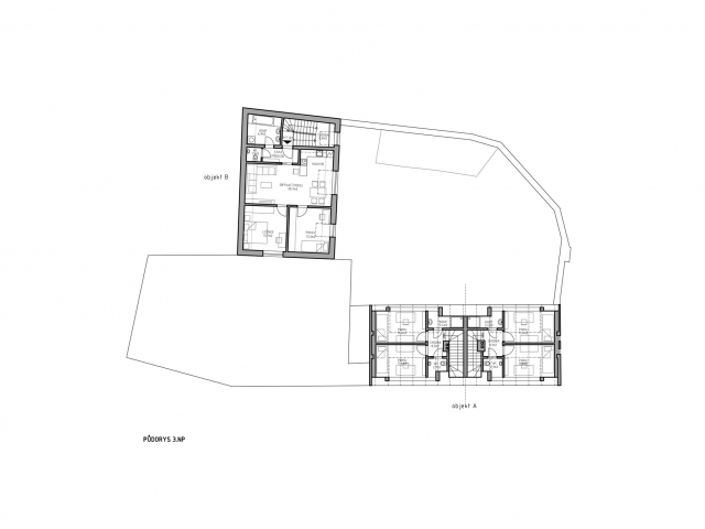
Stávající obytný dům - objekt A - o dvou nadzemních podlažích a podkroví bude z vnějšku rekonstruován do stavu blízkému své pravděpodobné původní podobě. Budou obnoveny všechny zdobné fasádní prvky a bude zachováno základní rozmístění okenních otvorů, případně budou otvory naznačeny ponechanými okenními šambránami. Střešní roviny budou rovněž zachovány a doplněny o střešní pultové vikýře, aby bylo možno využít půdní prostor stavby bez výrazného navýšení stavby. Interiér domu bude příčně rozdělen přes všechna tři patra na dvě poloviny, kdy každá bude řešena jako samostatná obytná jednotka. Hodnotné klenuté stropy v přízemí budou vytvářet kvalitní atmosféru nových obývacích prostor, v patře bude situována hlavní rodičovská ložnice a v podkroví pak dva dětské pokoje. Všechna podlaží budou vybavena sociálním zázemím. V suterénu stavby vznikne zázemí pro tyto i ostatní bytové jednotky souboru.
Stodola bude nahrazena objektem B ve stávajícím půdorysném rozsahu. Stavba bude zastřešen sedlovou střechou s hřebenem zvýšeným na úroveň původní obytné budovy, čímž bude umožněno v takto definované hmotě umístit rovněž dvě podlaží a obytné podkroví. Na rozdíl od původní obytné budovy zde budou obytné jednotky navrženy s dělením po patrech, obsloužené společnou vertikální komunikací situovanou při severním štítu stavby. Tři nové obytné jednotky pak jsou všechny základně děleny do dispozice 3+kk, která umístěním obývacího pokoje v centru půdorysu a pokojů při jižní fasádě ideálně zohledňuje mimo jiné možnost zajistit přirozené osvětlení pouze ve východní a jižní fasádě, jelikož ostatní stěny sousedí přímo s pozemky jiného vlastníka.
Pro zajištění optimálního komfortu je původní hospodářský dvůr nově uvažován primárně jako pobytová zahrada. Parkování vozidel je pak situováno v návaznosti na nově projednaný vjezd z ulice K Padesátníku v části stávající zahrady, čímž budou vozidla držena mimo pobytový prostor. V případě potřeby je stále zachována možnost pohotovostního parkování vozidel i ve dvorní pobytové části.
Prohlédnout galerii
















Bytové domy